Se siete interessati a investire nella proprieta' vi invitiamo a mettervi in contatto con noi attraverso il modulo di contatto.
Saremo lieti di prendere in considerazione ogni richiesta e valutare la vostre proposte.
Stato Attuale
Manomessa e danneggiata dalle guerre, Villa Friedenberg si presenta oggi in uno stato di completo abbandono; da oltre 30 anni priva di manutenzione essa presenta condizioni di degrado strutturale che si evidenziano principalmente con la comparsa di crolli in alcune parti della copertura e dei solai sottostanti. I rampicanti ne celano in parte i prospetti, arbusti e alberi crescono disordinatamente nel giardino antistante e nel parco retrostante l'edificio.
(cit. Relazione Storico-Artistica, Ministero per i Beni Culturali e Ambientali, 10 Nov. 1995)
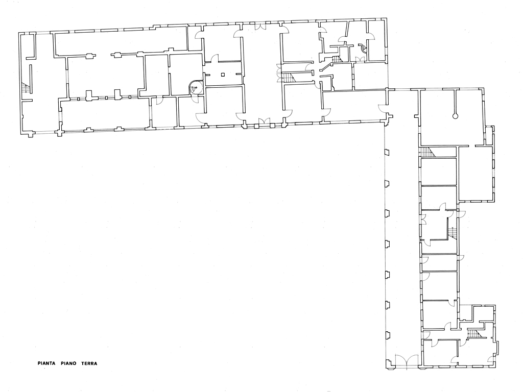
Computo Planivolumetrico
Di seguito sono riportati i calcoli e i disegni del computo planivolumetrico dello stato di fatto effettuato il 20 Giu. 1985 dal Dr. Giupponi Adelchi (Ordine dei Dottori Agronomi e Dottori Forestali della Provincia di Venezia).
| Corpo | Superficie Coperta | Superficie Complessiva | Volume Complessivo |
|---|---|---|---|
| A, A1, A2 | 256,70 mq. | 770,10 mq. | 3427 mc. |
| B, B1, B2 | 250,20 mq. | 750,60 mq. | 3090 mc. |
| C, C1, C2 | 248,87 mq. | 746,61 mq. | 2601 mc. |
| D, D1, D2 | 470,34 mq. | 1411,02 mq. | 3818 mq. |
| E | 39,69 mq. | 39,69 mq. | 127 mc. |
| F | 8,00 mq. | 8,00 mq. | 16 mc. |
| Serra | -- | -- | 270 mc. |
| TOTALE | 1273,80 mq. | 3826,02 mq. | 13.349 mc. |








